싱가포르 여행에서 두 번째 건물은 파크로얄 온 피커링 호텔(PARK ROYAL on Pickering)입니다.
PARK ROYAL on Pickering를 설계한 회사는 WOHA라는 싱가포르 건축설계사무소입니다.

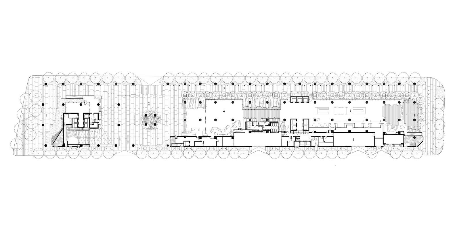
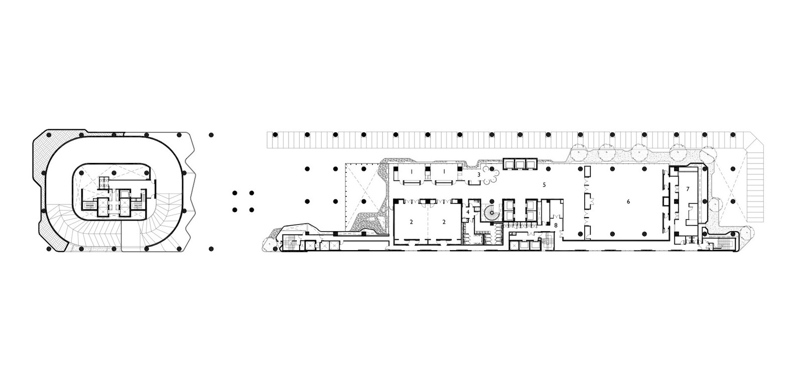
파크로얄 온 피커링(PARK ROYAL on Pickering)의 1층은 로비, lime(레스토랑, 찻집) 2층은 미팅, 이벤트 룸, 5층은 수영장, 피트니스센터, 스파, 테라스로 구성되어 있으며 6-15층은 호텔입니다.
WOHA
WOHA is a Singapore-based architecture practice, founded in 1994 by Wong Mun Summ and Richard Hassell.
www.woha.net
WOHA는 싱가포르를 기반으로 1994년에 Wong Mun Summ, Richard Hassell에 의해 설립되었습니다.
이 설계사무소의 철학은 환경과 사회적인 문제 해결을 기반으로 하고 있습니다.
디자인 프로세스 역시 지구온난화, 기후변화, 도시인구의 증가, 인프라 문제를 풀어나가는 방향으로 설정하고 있습니다.
또한 건물의 형태나 외관을 결정할 때 지역의 컨텍스트와 문화, 지역의 기후, 에너지 절약을 고려하고 있습니다.
WOHA가 설계한 대표적인 건물로 Oasia Hotel Singapore 이 있습니다.
독특한 외관과 색을 가지고 있어 싱가포르를 여행하다 보면 시내에서도 찾을 수 있습니다.

우선 파크로얄 온 피커링의 위치부터 알아보겠습니다.
여기서 건물의 위치를 먼저 알아보는 이유는 대부분의 건축물은 그 '건축이 서있는 땅'이 매우 중요합니다.
그 이유는 우리가 가진 건물을 부동산(不動産)이라고 부르는 것에서 알 수 있습니다.
움직여 다른 곳으로 옳길 수 없기 때문에 그 땅이 가진 특성을 정확히 파악하고 건물에 반영하여야 합니다.


사진3과 4에서 볼 수 있듯이 주요 관광지인 차이나타운, 클락키를 걸어서 갈 수 있고 싱가포르 지하철인 MRT(차이나타운역)도 가까이 있습니다. 또한 마리나샌즈 베이도 가깝기 때문에 호텔로써는 좋은 지리적인 위치를 가지고 있습니다.
호텔의 가격(숙박비)은 호텔을 선택할 때 중요하게 고려하는 요소이지만, 주요 관광지와 거리가 멀어질 수록 추가적으로 교통비, 시간이 소모되기 때문에 대부분 관광지와 인접한 위치의 호텔을 선호할 것입니다.
또 사람들이 호텔을 선택할때 중요한 것이 하나 있는데 그것은 바로 객실의 전망(view)입니다. 바닷가 근처에 있는 호텔이라면 오션뷰와 그 외 기타 뷰를 가진 객실의 가격차이는 1.5배 혹은 그 이상 난다고 생각됩니다.


개인적으로 파크로얄 온 피커링 호텔이 자연으로 둘러싸인듯한 독특한 외관을 갖게 된 주요 원인은 객실의 전망(view) 때문이라고 생각됩니다. 위치가 좋다고 하더라도 전망(view)이 별로라면 싱가포르에 다른 호텔과 비교해서 경쟁력이 떨어질 것입니다. 특히 호텔 건축에서는 객실의 크기가 제한적이기 때문에 객실 내부에서 다른 호텔과 차별점을 갖기는 힘듭니다. 그래서 결국에는 좋은 외부공간(view)을 객실 내부로 끌고 들어와야 합니다. 그러나 사진5에서 보듯이 파크로얄 온 피커링 호텔 객실의 전망은 그렇게 좋지 못합니다. 사진6의 마리나 베이 샌즈의 객실 전망 혹은 다른 싱가포르 호텔과 비교해보면 크게 차이가 납니다.
사진4의 구글 지도를 보면 파크로얄 온 피커링의 호텔 정면에는 Hong Lim Park라는 공원이 있지만 사진 5에서 볼 수 있듯이 고층으로 올라갈수록 별로 보이지도 않습니다.
그래서 이 땅에서의 건축을 의뢰를 받은 건축가는 분명 좋지 못한 외부공간을 가진 땅을 극복하기 위해 고민했을 겁니다. 그리고 결국에는 객실 외부에 좋은 외부공간(view)을 만들기 위해 인공적으로 자연을 만들었습니다.

사진 5에서 보듯이 이 땅이 가진 외부공간은 평범한 도시였지만, 외부에 인공적인 자연을 만듦으로 인해서 사진 7과 같은 전망(view)을 갖게 하였습니다. 개인적으로 이 호텔은 도시 속에 있지만 호텔 내부로 들어오면 숲 속에 있는 것 같은 느낌이 들었습니다. 그 이유 중 하나가 객실 내부에서 자연이 보이기도 하지만 객실 내부 마감재를 나뭇결 문양을 가진 마감재를 사용하였습니다. 커튼월의 금속 프레임 역시 나무 문양을 한 겹 더 덧대어 금속 프레임이 보이지 않도록 하였습니다.





건물의 가진 땅의 외부공간을 극복하기 위해서 어렵게 건축으로 자연을 만들었으며 복도 등 곳곳에도 자연을 배치한 것을 볼 수 있습니다. 이제는 이렇게 어렵게 만든 외부공간(자연)을 몇몇 소수의 객실이 아닌 최대한 많은 객실에 넣어주어야 합니다. 그러려면 건물의 형태는 표면적이 넓은 형태를 가져야 합니다. 따라서 이 건물의 형태(form)는 영어 대문자 'E'처럼 생겼습니다.


간단하게 3D로 그려보았습니다. 정확한 수치는 아니겠지만 개략적으로 그린 3D형태에서 사진 13보다 사진 14의 형태가 약 2배의 표면적을 갖고 있습니다. 결론적으로 더 많은 객실이 어렵게 만든 외부공간(자연)을 바라볼 수 있습니다.
그러나 이런 형태로 객실을 배치할 경우 프라이버시에 대한 문제가 생깁니다. 모든 객실이 한 방향을 바라보는 것이 아니라 서로의 객실을 바라보기 때문입니다. 여기서는 외부로 돌출된 수직 루버를 욕실 구간에 배치하여 최소한의 프라이버시를 해결하였습니다. 사진 8의 복도 사진을 보면 객실(오른쪽)에 수직 루버가 있는 것을 확인할 수 있습니다.


개인적인 생각으로 높은 층고를 가진 기둥은 깊은 숲 속의 나무 같은 형태를 가져 옴으로써 자연에 있는 느낌을 주기 위함이라고 생각합니다. 그런데 이 건물은 보면서 가장 궁금한 것 중 하나는 '왜 사진 15, 16처럼 불규칙한 패턴을 굳이 어렵게 사용하는가?'였습니다. 물론 디자인적인 측면이 강하게 있겠지만, 제가 생각한 결론은 아마 인공적(artificial)인 대지를 표현하고 싶었던 것이 아닌가 싶습니다. 대부분 건축모형을 만들기 앞서 대지모형을 만들 때는 일정한 두께를 가진 판으로 등고선을 만드는데 여기서 이 대지모형의 등고선을 표현한 듯한 느낌을 받았습니다. 어쩌면 자하 하디드의 DDP(동대문디자인플라자)처럼 부드러운 곡선을 사용할 수 도 있었겠지만, 이런 딱딱 끊어지는 곡선을 만듦으로써 이 건물은 인공적인 대지위에 만들어진 자연이라는 것을 이야기 하고 싶었던것이 아닌가 하는 생각이 들었습니다. 이 등고선 같은 패턴을 로비 천정에도 사용하였고, 미팅룸 바닥패턴(사진 17,18)에도 사용하였습니다. 하나의 디자인컨셉을 가지고 건물 곳곳에 녹아내어 건물 내부에서 일체감이 들도록 하였습니다.


아래는 파크로얄 온 피커링의 기타 도면, 사진 자료입니다.









지금까지 싱가포르의 PARKROYAL on Pickering에 대해서 알아보았습니다.
다음 글에서는 싱가포르의 대표적인 건축물인 마리나 베이 샌즈(Marina Bay SANDS)와 가든스 바이 더 베이(Gardens by the Bay)에 대해 알아보겠습니다.
'건축여행' 카테고리의 다른 글
| 르 꼬르뷔지에(Le Corbusier) 건축여행 #프랑스 건축여행 #시작 (0) | 2019.11.28 |
|---|---|
| Interlace (인터레이스) #현대건축 #싱가포르 건축여행 (0) | 2019.11.28 |
| 마리나베이샌즈(Marnia Bay SANDS) #싱가포르 건축여행 (2) | 2019.11.03 |
| LASALLE college of Arts(라살르 예술대학) #싱가포르 건축여행 (0) | 2019.07.30 |
| 싱가포르 건축여행 #시작 (0) | 2019.07.26 |
댓글