안녕하세요 정사원입니다.
지금까지 벽체 철근과 슬라브 철근 편에서 중요한 2가지 개념인 철근의 '정착'과 '이음'에 대해서 알아보았습니다.
이번 글에서는 본격적으로 슬래브 철근 배근과 배근시 주의사항에 대해서 알아보겠습니다.

사진1은 슬래브 철근 배근이 완료된 사진입니다.
배근이 완료된 모습을 보고 도면을 보는 게 이해하기가 더 쉬울 것 같아 먼저 가지고 왔습니다.
우선 슬래브 철근 배근 도면부터 살펴보도록 하겠습니다.



철근배근 도면을 보기 전에 특기사항(사진4)을 먼저 보아야 합니다.
하나씩 살펴보도록 하겠습니다.
[3. 범례]를 보면 사각형안에 다양한 해치 무늬들이 있는 것을 볼 수 있습니다. 예를 들어 빈칸으로 된 사각형은 : SL+0, SLAB THK=210인데, 대각선 해치 무늬 사각형은 SL-50, SLAB THK=160이라고 적혀있는 것을 볼 수 있습니다. 말 그대로 대각선 해치 무늬가 표시된 구간은 슬래브 레벨이 50mm 낮은 160mm라는 뜻입니다. 그러면 슬래브 철근 배근을 할 때 210mm 슬래브와 똑같이 높이로 배근하는 것이 아니라 더 낮게 시공되어야 합니다. (욕실 구간이라 슬래브 레벨이 조금 더 낮습니다. 욕실은 물을 사용하기 때문에 방보다는 레벨이 낮아야 하고, 욕실화를 넣어두고도 화장실 문이 닫혀야 하기 때문에 50mm를 낮게 시공하는 것입니다.)
[4.기타] 실선은 상부근, 점선은 하부근으로 표기된 것을 볼 수 있습니다. 그러나 사진 3과 사진 4를 보면 분명 하나의 선인데도 불구하고 일부는 실선, 일부는 점선으로 표기되어 있습니다. 이 철근은 '벤트근'이라고 합니다.
'bent : 구부러진, 휜' 말 그대로 휘어져있는 철근입니다.
(사진 3과 사진 4에 있는 일점쇄선은 주열대(column strip), 중간대(middle strip)를 구분하는 선입니다.)

밴트근이라는 굽은 철근이 시공되는 이유는 철근콘크리트 구조에서 철근이 인장력을 담당하기 때문입니다.
사진 5에 BMD(Bending Moment Diagram)는 단순 라멘 구조가 받는 휨 모멘트(외력에 의해 부재에 생기는 단면력의 하나로, 부재를 휘어지게 하는 힘)를 그림으로 표현한 것인데, 밴트근의 모양과 휨 모멘트도가 똑같이 생긴 것을 확인할 수 있습니다.
[5.미표기 배근] : SHD10@420이라는 의미는 사진 3과 사진 4에 'SHD13@420(T) (ADD BAR)'이라고 표시된 것 외에 실선, 점선은 모두 10mm 철근은 420mm 간격으로 배근한다는 뜻입니다.
도면을 보면서 슬라브 철근 배근이 완료하였습니다.
그러나 슬라브 철근 배근에서는 주의하여야 할 사항이 몇 가지 있습니다.
(주의사항을 확인하기 위해서는 구조 일반사항을 참조하여야 합니다.)


첫 번째는 묻힘 길이를 확보해주어야 합니다.
사진 6에서 상부 cut의 배근 길이에서 '묻힘 길이 : 부재의 유효 깊이 d, 12db 이상]'를 확보해주어야 합니다.
묻힘 길이를 확보하는 이유는 휨 모멘트가 반전되는 구간을 '변곡점'이라고 하는데 이 변곡점에서의 보강 차원입니다.

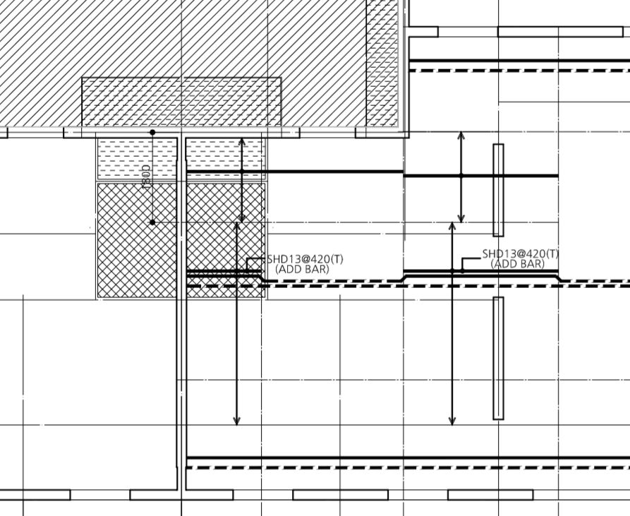
두 번째는 보와 슬래브가 만나는 구간입니다.
사진 8에서 'T'자형 모양을 한 그림을 살펴보겠습니다.
슬라브 배근 간격이 S인데, 보 주변에서는 S/2를 확보해주어야 합니다.

세 번째는 슬라브 단차가 있을 경우 배근 방식이 달라지는 것을 확인해야 합니다.
아파트 화장실 배근의 경우 슬라브 두께가 210mm, 단차가 50mm이므로 (a)에 해당하기 때문에 굽은 철근을 시공하면 되지만, 지하주차장 등에서는 1000mm 이상의 단차가 있는 경우도 있기 때문에 상황에 맞는 배근을 해야 합니다.


마지막으로는 철근 하부 받침대(support), 스페이서(spacer)를 상황에 맞게 적절히 사용하여야 합니다.
사진 11과 사진 12를 자세히 보면 스페이서의 모양이 다른 것을 알 수 있습니다.
단열재가 있는 구간에는 사진 12와 같은 스페이서를 사용해야 합니다. 그 이유는 사진 11과 같은 스페이서를 확보하면 단열재가 훼손되기 때문입니다.
또한 적절한 피복두께를 확보하여야 합니다.
https://tophoon.tistory.com/27
#아파트_003 #벽체철근3
지금까지 철근 도면을 읽는 방법과 철근배근 작업의 중요한 개념인 철근의 이음에 대해서 알아보았습니다. 이제 본격적으로 철근배근 작업에 들어가도록 하겠습니다. 벽체 철근은 수직근과 수평근을 일정한 간격..
tophoon.tistory.com
#아파트_003 #벽체 철근 3에서 왜 피복두께를 확보해야 하는지에 대해 이야기해보았습니다.
그러나 여기서 중요한 것은 적절한 피복두께를 확보해야 한다는 것입니다.
피복두께가 얇아도 문제(철근의 부식, 내화성, 부착력 확보 등)가 생기지만, 너무 두꺼워도 문제가 생깁니다.
피복두께가 두꺼워지게 되면 상하부 철근이 서로 가까이 붙게 되고 이는 구조내력 저하로 이어지기 때문입니다.
*참고


N.A는 사진 13의 'Neutral Axis : 중립 축'을 의미합니다. 중립 축이란 부재의 중간에 존재하면서 부재가 길어지지도 짧아지지도 않는 축. 즉 변형률이 0이면서 응력 또한 0인 곳을 말합니다.

압축력 c는 비선형(b)이기 때문에 등가 블록(c)으로 변경해서 계산합니다. 여기서 등가 직사각형 응력 블록은 중립 축과 거리와 면적이 같아야 합니다.
사진 15를 예로 설명해보겠습니다.
콘크리트의 압축력은 0.85fck×a×b, 인장력은 As×Fy 입니다.
여기서 압축력은 인장력과 같기 때문에 0.85fck×a×b=As×Fy이며 d-a/2 거리만큼 우력이 발생합니다.
*a=β1×c, *β1=등가직사각형 응력블록계수, *c=center (중립축까지의 거리), *b=부재 폭
그런데 철근이 아래로 내려오거나 위로 올라갈 경우 d-a/2의 거리가 짧아져 부재의 내력이 줄어들게 되는 것입니다.
다음 글에서는 콘크리트 및 타설 과정에 대해서 알아보겠습니다.
'건설현장' 카테고리의 다른 글
| 콘크리트 타설2(레미콘시험) #아파트_006 (4) | 2019.10.03 |
|---|---|
| 콘크리트 타설1(시멘트 수화반응) #아파트_006 (1) | 2019.09.21 |
| 19년 건설사 시공능력평가 순위 (0) | 2019.09.01 |
| 슬래브철근배근1(철근의 정착) #아파트_005 # (0) | 2019.09.01 |
| 알폼2 #아파트_004 (4) | 2019.08.20 |
댓글